Return to flip book view

Sample Purchase Agreement

Page 1

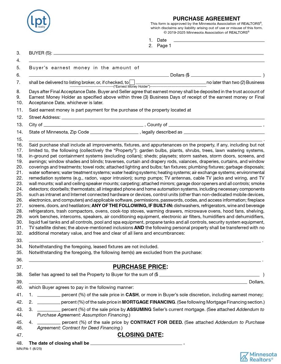
PURCHASE AGREEMENTThis form is approved by the Minnesota Association of REALTORS®, which disclaims any liability arising out of use or misuse of this form.© 2019-2025 Minnesota Association of REALTORS®1. Date2. Page 13. BUYER (S):4. 5.B u y e r ’s e a r n e s t m o n e y i n t h e a m o u n t o f6. Dollars ($ ) 7. shall be delivered to listing broker, or, if checked, to no later than two (2) Business -----------------------------------(“Earnest Money Holder”)---------------------------------------------8. Days after Final Acceptance Date. Buyer and Seller agree that earnest money shall be deposited in the trust account of9. Earnest Money Holder as specified above within three (3) Business Days of receipt of the earnest money or Final10. Acceptance Date, whichever is later.11. Said earnest money is part payment for the purchase of the property located at12. Street Address:13. City of , County of , 14. State of Minnesota, Zip Code , legally described as 15. .16. Said purchase shall include all improvements, fixtures, and appurtenances on the property, if any, including but not17. limited to, the following (collectively the “Property”): garden bulbs, plants, shrubs, trees, lawn watering systems,18. in-ground pet containment systems (excluding collars); sheds; playsets; storm sashes, storm doors, screens, and19. awnings; window shades and blinds; traverses, curtain and drapery rods, valances, draperies, curtains, and window20. coverings and treatments; towel rods; attached lighting and bulbs; fan fixtures; plumbing fixtures; garbage disposals;21. water softeners; water treatment systems; water heating systems; heating systems; air exchange systems; environmental22. remediation systems (e.g., radon, vapor intrusion); sump pumps; TV antennas, cable TV jacks and wiring, and TV23. wall mounts; wall and ceiling speaker mounts; carpeting; attached mirrors; garage door openers and all controls; smoke24. detectors; doorbells; thermostats; all integrated phone and home automation systems, including necessary components25. such as intranet and Internet connected hardware or devices, control units (other than non-dedicated mobile devices,26. electronics, and computers) and applicable software, permissions, passwords, codes, and access information; fireplace27. screens, doors, and heatilators; ANY OF THE FOLLOWING, IF BUILT-IN: dishwashers, refrigerators, wine and beverage28. refrigerators, trash compactors, ovens, cook-top stoves, warming drawers, microwave ovens, hood fans, shelving,29. work benches, intercoms, speakers, air conditioning equipment, electronic air filters, humidifiers and dehumidifiers,30. liquid fuel tanks and all controls, pool and spa equipment, propane tanks and all controls, security system equipment,31. TV satellite dishes; the above-mentioned inclusions AND the following personal property shall be transferred with no32. additional monetary value, and free and clear of all liens and encumbrances:33. . 34. Notwithstanding the foregoing, leased fixtures are not included.35. Notwithstanding the foregoing, the following item(s) are excluded from the purchase:36. . 37. PURCHASE PRICE:38. Seller has agreed to sell the Property to Buyer for the sum of ($)39. Dollars,40. which Buyer agrees to pay in the following manner:41. 1. percent (%) of the sale price in CASH, or more in Buyer’s sole discretion, including earnest money; 42. 2. percent (%) of the sale price in MORTGAGE FINANCING. (See following Mortgage Financing section.)43. 3. percent (%) of the sale price by ASSUMING Seller’s current mortgage. (See attached Addendum to 44. Purchase Agreement: Assumption Financing.)45. 4. percent (%) of the sale price by CONTRACT FOR DEED. (See attached Addendum to Purchase 46. Agreement: Contract for Deed Financing.)47. CLOSING DATE: 48. The date of closing shall be .MN:PA-1 (8/25)

Page 2

PURCHASE AGREEMENT49. Page 2 Date50. Property located at .51. MORTGAGE FINANCING:52. This Purchase Agreement IS IS NOT subject to the mortgage financing provisions below. If IS, complete the -------(Check one.)-----53. MORTGAGE FINANCING section below. If IS NOT, proceed to the SELLER’S CONTRIBUTIONS TO BUYER’S54. COSTS section.55. Such mortgage financing shall be: (Check one.)56. FIRST MORTGAGE only FIRST MORTGAGE AND SUBORDINATE FINANCING.57. Buyer shall apply for and secure, at Buyer’s expense, a: (Check all that apply.)58. CONVENTIONAL OR PRIVATELY INSURED CONVENTIONAL59. DEPARTMENT OF VETERANS’ AFFAIRS (“DVA”) GUARANTEED 60. FEDERAL HOUSING ADMINISTRATION (“FHA”) INSURED 61. UNITED STATES DEPARTMENT OF AGRICULTURE (“USDA”) RURAL DEVELOPMENT62. OTHER 63. mortgage in the amount stated in this Purchase Agreement, amortized over a period of not more than64. years, with an initial interest rate at no more than percent (%) per annum. The mortgage 65. application IS TO BE MADE WITHIN FIVE (5) BUSINESS DAYS after the Final Acceptance Date. Buyer agrees to66. use best efforts to secure a commitment for such financing and to execute all documents required to consummate67. said financing.68. LOCKING OF MORTGAGE INTEREST RATE (“RATE”): The Rate shall be locked with the lender(s) by Buyer:69. (Check one.)70. WITHIN FIVE (5) BUSINESS DAYS OF FINAL ACCEPTANCE DATE; OR71. AT ANY TIME PRIOR TO CLOSING OR AS REQUIRED BY LENDER(S).72. MORTGAGE FINANCING CONTINGENCY: This Purchase Agreement is contingent upon the following and applies73. to the first mortgage and any subordinate financing. (Check one.)74. If Buyer cannot secure the financing specified in this Purchase Agreement, and this Purchase Agreement does not 75. close on the closing date specified, this Purchase Agreement is canceled. Buyer and Seller shall immediately76. sign a Cancellation of Purchase Agreement confirming said cancellation and directing all earnest money paid here to be77. REFUNDED TO BUYER FORFEITED TO SELLER. ------------------------------------------(Check one.)--------------------------------------78. NOTE: If this Purchase Agreement is subject to DVA or FHA financing, FORFEITED TO SELLER may be prohibited.79. See the following DVA and FHA Escape Clauses.80. OR81. Buyer shall provide Seller, or licensee representing or assisting Seller, with the Written Statement, on 82. or before . 83. For purposes of this Contingency, “Written Statement” means a Written Statement prepared by Buyer’s mortgage84. originator(s) or lender(s) after the Final Acceptance Date that Buyer is approved for the loan(s) specified in this85. Purchase Agreement, including both the first mortgage and any subordinate financing, if any, and stating that an86. appraisal, satisfactory to the lender(s), has been completed or the lender(s) has waived the appraisal and stating87. conditions required by lender(s) to close the loan.88. Upon delivery of the Written Statement to Seller, or licensee representing or assisting Seller, the obligation for89. satisfying all conditions required by mortgage originator(s) or lender(s), except those conditions specified below,90. are deemed accepted by Buyer:91. (a) work orders agreed to be completed by Seller;92. (b) any other financing terms agreed to be completed by Seller here; and93. (c) any contingency for the sale and closing of Buyer’s property pursuant to this Purchase Agreement.MN:PA-2 (8/25)

Page 3

PURCHASE AGREEMENT94. Page 3 Date95. Property located at .96. Upon delivery of the Written Statement, if this Purchase Agreement does not close on the stated closing date for97. ANY REASON relating to financing, including, but not limited to interest rate and discount points, if any, then Seller98. may, at Seller’s option, declare this Purchase Agreement canceled, in which case this Purchase Agreement is99. canceled. If Seller declares this Purchase Agreement canceled, Buyer and Seller shall immediately sign a100. Cancellation of Purchase Agreement confirming said cancellation and directing all earnest money paid here to be101. FORFEITED TO SELLER as liquidated damages. In the alternative, Seller may seek all other remedies allowed by law.102. Notwithstanding the language in the preceding paragraph, Seller may not declare this Purchase Agreement103. canceled if the reason this Purchase Agreement does not close was due to:104. (a) Seller’s failure to complete work orders to the extent required by this Purchase Agreement;105. (b) Seller’s failure to complete any other financing terms agreed to be completed by Seller here; or106. (c) any contingency for the sale and closing of Buyer’s property pursuant to this Purchase Agreement, except107. as specified in the contingency for sale and closing of Buyer’s property.108. If the Written Statement is not provided by the date specified on line 82, Seller may, at Seller’s option, declare this109. Purchase Agreement canceled by written notice to Buyer at any time prior to Seller receiving the Written Statement,110. in which case this Purchase Agreement is canceled. In the event Seller declares this Purchase Agreement canceled,111. Buyer and Seller shall immediately sign a Cancellation of Purchase Agreement confirming said cancellation and112.directing all earnest money paid here to be RETAINED BY SELLER REFUNDED TO BUYER.--------------------------------------(Check one.)---------------------------------------113. If the Written Statement is not provided, and Seller has not previously canceled this Purchase Agreement, this114. Purchase Agreement is canceled as of the closing date specified in this Purchase Agreement. Buyer and Seller115. shall immediately sign a Cancellation of Purchase Agreement confirming said cancellation and directing all earnest116. money paid here to be RETAINED BY SELLER REFUNDED TO BUYER. --------------------------------------(Check one.)----------------------------------------117. LENDER COMMITMENT WORK ORDERS: Seller agrees to pay up to $ to make 118. repairs as required by the lender commitment. If the lender commitment is subject to any work orders for which the119. cost of making said repairs shall exceed this amount, Seller shall have the following options:120. (a) making the necessary repairs; or121. (b) negotiating the cost of making said repairs with Buyer; or122. (c) declaring this Purchase Agreement canceled, in which case this Purchase Agreement is canceled. Buyer and Seller123. shall immediately sign a Cancellation of Purchase Agreement confirming said cancellation and directing all earnest124. money paid here to be refunded to Buyer, unless Buyer provides for payment of the cost of said repairs or escrow125. amounts related thereto above the amount specified on line 117 of this Purchase Agreement.126. SELLER BUYER agrees to pay any reinspection fee required by Buyer’s lender(s).-----------(Check one.)--------------127. FHA ESCAPE CLAUSE (FHA Financing only): “It is expressly agreed that, notwithstanding any other provisions128. of this contract, the purchaser shall not be obligated to complete the purchase of the Property described here or to incur129. any penalty by forfeiture of earnest money deposits or otherwise, unless the purchaser has been given in accordance130. with the Department of Housing and Urban Development (“HUD”)/FHA or DVA requirements a written statement by the131. Federal Housing Commissioner, Department of Veterans’ Affairs, or a Direct Endorsement lender setting forth the132. appraised value of the Property as not less than $ .(sale price)133. The purchaser shall have the privilege and option of proceeding with consummation of the contract without regard134. to the amount of the appraised valuation. The appraised valuation is arrived at to determine the maximum mortgage135. HUD will insure; HUD does not warrant the value nor the condition of the Property. The purchaser should satisfy himself/136. herself that the price and condition of the Property are acceptable.”MN:PA-3 (8/25)

Page 4

PURCHASE AGREEMENT137.Page 4 Date138. Property located at .139. LENDER PROCESSING FEES (FHA, DVA Financing Only): Seller agrees to pay Buyer’s closing fees and140. miscellaneous processing fees which cannot be charged to Buyer, not to exceed $ . 141. This amount is in addition to Seller’s Contributions to Buyer’s Costs, if applicable.142. DVA FUNDING FEE (DVA Financing only): Pursuant to federal regulations, a one-time Funding Fee based on loan143. amount, not otherwise waived, must be paid at closing of this transaction as follows:144. paid by Buyer AT CLOSING ADDED TO MORTGAGE AMOUNT------------------------------------------(Check one.)-------------------------------------------145. paid by Seller146. NOTE: DVA regulations limit the fees and charges Buyer can pay to obtain a DVA loan.147. DEPARTMENT OF VETERANS’ AFFAIRS ESCAPE CLAUSE (DVA Financing only): “It is expressly agreed that,148. notwithstanding any other provisions of this contract, the purchaser shall not incur any penalty by forfeiture of earnest149. money or otherwise be obligated to complete the purchase of the Property described here, if the contract purchase150. price or cost exceeds the reasonable value of this Property established by the Department of Veterans’ Affairs. The151. purchaser shall, however, have the privilege and option of proceeding with the consummation of this contract without152. regard to the amount of reasonable value established by the Department of Veterans’ Affairs.”153. NOTE: Verify DVA requirements relating to payment of all special assessments levied and pending, and 154. annual installments of special assessments certified to yearly taxes.155. OTHER MORTGAGE FINANCING ITEMS:156. 157. SELLER’S CONTRIBUTIONS TO BUYER’S COSTS: 158. Seller IS IS NOT contributing to Buyer’s costs. If answer is IS, Seller agrees to pay at closing, up to: (Check one.) ------(Check one.)-----159. $ 160. percent (%) of the sale price161. towards Buyer’s closing fees, title service fees, title searches, title examinations, abstracting, lender’s title insurance,162. owner’s title insurance, prepaid items, other Buyer’s costs allowable by lender, if any, and/or mortgage discount points. Any163. amount of Seller’s contribution that exceeds Buyer’s allowable costs, or which cannot be used because Seller’s164. contribution exceeds the maximum Seller contribution allowed by law or by mortgage requirements, shall be retained165. by Seller.166. NOTE: The amount paid by Seller cannot exceed the maximum Seller contribution allowed by FHA, DVA, or167. lender. All funds paid by Seller on behalf of Buyer must be stated on the Closing Disclosure at closing.168. INSPECTIONS:169. Buyer has been made aware of the availability of Property inspections. Buyer ELECTS DECLINES to have a --------------(Check one.)----------------170. Property inspection performed at Buyer’s expense.171. This Purchase Agreement IS IS NOT contingent upon any inspection(s) of the Property obtained by Buyer to ------(Check one.)-----172. determine its condition, including any non-intrusive testing or any intrusive testing as allowed pursuant to this Purchase173. Agreement.174. Any inspection(s) or test(s) shall be done by an inspector(s) or tester(s) of Buyer’s choice. Buyer shall satisfy Buyer175. as to the qualifications of the inspector(s) or tester(s). For purposes of this Purchase Agreement, “intrusive testing”176. shall mean any testing, inspection(s), or investigation(s) that changes the Property from its original condition or177. otherwise damages the Property.178. Seller DOES DOES NOT agree to allow Buyer to perform intrusive testing or inspection(s).-------------(Check one.)-------------179. If answer is DOES, Buyer agrees that the Property shall be returned to the same condition it was in prior to Buyer’s180. intrusive testing at Buyer’s sole expense.MN:PA-4 (8/25)

Page 5

PURCHASE AGREEMENT181.Page 5 Date182. Property located at .183. Seller will provide access to attic(s) and crawlspace(s).184. Within Calendar Days of Final Acceptance Date, all inspection(s), test(s), and resulting negotiations, if any, 194. 195. 196. 197. SALE OF BUYER’S PROPERTY:198. (Check one.)199. 1. This Purchase Agreement is subject to an Addendum to Purchase Agreement: Sale of Buyer’s Property200. Contingency for the sale of Buyer’s property. (If checked, see attached Addendum.)201. OR202.2. This Purchase Agreement is contingent upon the successful closing on the Buyer’s property located at203. , which is scheduled to close on 204. pursuant to a fully executed purchase agreement. If Buyer’s 205. property does not close by the closing date specified in this Purchase Agreement, this Purchase Agreement206. is canceled. Buyer and Seller shall immediately sign a Cancellation of Purchase Agreement confirming said207. cancellation and directing all earnest money paid here to be refunded to Buyer. The language in this paragraph208. supersedes any other provision to the contrary in any financing contingency made a part of this Purchase209. Agreement, if applicable.210. OR211.3. Buyer represents that Buyer has the financial ability to perform on this Purchase Agreement without the sale212. and closing on any other property.213. REAL ESTATE TAXES/SPECIAL ASSESSMENTS:214. REAL ESTATE TAXES: Seller shall pay on the date of closing all real estate taxes due and payable in all prior years215. including all penalties and interest.216. Buyer shall pay PRORATED FROM DAY OF CLOSING ALL NONE /12ths OF real estate taxes---------------------------------------------------------(Check one.)----------------------------------------------------------------217. due and payable in the year of closing.218. Seller shall pay PRORATED TO DAY OF CLOSING ALL NONE /12ths OF real estate taxes due and --------------------------------------------------(Check one.)----------------------------------------------------------219. payable in the year of closing.220. If the Property tax status is a part- or non-homestead classification in the year of closing, Seller SHALL SHALL NOT ------------(Check one.)----------------221. pay the difference between the homestead and non-homestead.222. Buyer shall pay real estate taxes due and payable in the year following closing and thereafter, the payment of which223. is not otherwise here provided. No representations are made concerning the amount of subsequent real estate taxes.MN:PA-5 (8/25)185. shall be done (“Inspection Period”).186. If this Purchase Agreement is contingent upon inspection, Buyer may cancel this Purchase Agreement based on the187. inspection(s) or test result(s) by providing written notice to Seller, or licensee representing or assisting Seller, of Buyer’s188. election to cancel no later than the end of the Inspection Period. If Buyer cancels this Purchase Agreement, then the189. Purchase Agreement is canceled. Buyer and Seller shall immediately sign a Cancellation of Purchase Agreement190. confirming said cancellation and directing all earnest money paid here to be refunded to Buyer. If Buyer does not191. cancel this Purchase Agreement before the end of the Inspection Period, then this Inspection Contingency shall be192. deemed removed and this Purchase Agreement shall be in full force and effect.193. OTHER INSPECTION ITEMS:

Page 6

PURCHASE AGREEMENT224.Page 6 Date225. Property located at .226. DEFERRED TAXES/SPECIAL ASSESSMENTS:227. BUYER SHALL PAY SELLER SHALL PAY on date of closing any deferred real estate taxes (e.g., Green------------------------------------(Check one.)-----------------------------------------228. Acres) or special assessments, payment of which is required as a result of the closing of this sale.229. BUYER AND SELLER SHALL PRORATE AS OF THE DATE OF CLOSING SELLER SHALL PAY ON-----------------------------------------------------------------------------------------------(Check one.)------------------------------------------------------------------------------230. DATE OF CLOSING all installments of special assessments certified for payment, with the real estate taxes due and231. payable in the year of closing.232. BUYER SHALL ASSUME SELLER SHALL PAY on date of closing all other special assessments levied as--------------------------------------(Check one.)---------------------------------------233. of the Date of this Purchase Agreement. Notwithstanding the foregoing, Buyer shall assume any levied assessments234. that cannot be paid in the year of closing.235. BUYER SHALL ASSUME SELLER SHALL PROVIDE FOR PAYMENT OF special assessments pending as----------------------------------------------------------------(Check one.)-------------------------------------------------------236. of the Date of this Purchase Agreement for improvements that have been ordered by any assessing authorities. (Seller’s237. provision for payment shall be by payment into escrow of two (2) times the estimated amount of the assessments238. or less, as required by Buyer’s lender.)239. Buyer shall pay any unpaid special assessments payable in the year following closing and thereafter, the payment of240. which is not otherwise here provided.241. As of the Date of this Purchase Agreement, Seller represents that Seller HAS HAS NOT received a notice-----------(Check one.)------------242. regarding any new improvement project from any assessing authorities, the costs of which project may be assessed243. against the Property. Any such notice received by Seller after the Date of this Purchase Agreement and before closing244. shall be provided to Buyer immediately. If such notice is issued after the date of this Purchase Agreement and on245. or before the date of closing, then the parties may agree in writing, on or before the date of closing, to pay, provide246. for the payment of, or assume the special assessments. In the absence of such agreement, either party may declare247. this Purchase Agreement canceled by written notice to the other party, or licensee representing or assisting the other248. party, in which case this Purchase Agreement is canceled. If either party declares this Purchase Agreement canceled,249. Buyer and Seller shall immediately sign a Cancellation of Purchase Agreement confirming said cancellation and250. directing all earnest money paid here to be refunded to Buyer.251. ADDITIONAL PROVISIONS:252. PREVIOUSLY EXECUTED PURCHASE AGREEMENT: This Purchase Agreement IS IS NOT subject to --------(Check one.)-------253. cancellation of a previously executed purchase agreement dated . 254. (If answer is IS, said cancellation shall be obtained no later than . 255. If said cancellation is not obtained by said date, this Purchase Agreement is canceled. Buyer and Seller shall immediately256. sign a Cancellation of Purchase Agreement confirming said cancellation and directing all earnest money paid here to257. be refunded to Buyer.)258. DEED/MARKETABLE TITLE: Upon performance by Buyer, Seller shall deliver a: (Check one.)259. WARRANTY DEED PERSONAL REPRESENTATIVE’S DEED CONTRACT FOR DEED TRUSTEE’S DEED 260. OTHER: DEED joined in by spouse, if any, conveying marketable title, subject to261. (a) building and zoning laws, ordinances, and state and federal regulations;262. (b) restrictions relating to use or improvement of the Property without effective forfeiture provisions;263. (c) reservation of any mineral rights by the State of Minnesota;264. (d) utility and drainage easements which do not interfere with existing improvements;265. (e) rights of tenants as follows (unless specified, not subject to tenancies):266. ; and267. (f) others (must be specified in writing):268. .MN:PA-6 (8/25)

Page 7

PURCHASE AGREEMENT269.Page 7 Date270. Property located at .271. POSSESSION: Seller shall deliver possession of the Property: (Check one.)272. IMMEDIATELY AFTER CLOSING; or 273. OTHER: .274. Seller agrees to remove ALL DEBRIS AND ALL PERSONAL PROPERTY NOT INCLUDED HERE from the Property275. by possession date.276. LINKED DEVICES: Seller warrants that Seller shall permanently disconnect or discontinue Seller’s access or service277. to any device or system on or serving the property that is connected or controlled wirelessly, via internet protocol (“IP”)278. to a router or gateway or directly to the cloud no later than delivery of possession as specified in this Purchase279. Agreement.280. PRORATIONS: All interest; unit owners’ association dues; rents; and charges for city water, city sewer, electricity, and281. natural gas shall be prorated between the parties as of date of closing. Buyer shall pay Seller for remaining gallons of282. fuel oil or liquid petroleum gas on the day of closing, at the rate of the last fill by Seller.283. TITLE AND EXAMINATION: As quickly as reasonably possible after Final Acceptance Date:284. (a) Seller shall deliver any abstract of title and a copy of any owner’s title insurance policy for the Property, if285. in Seller’s possession or control, to Buyer or Buyer’s designated title service provider. Any abstract of title or286. owner’s title insurance policy provided shall be immediately returned to Seller, or licensee representing or287. assisting Seller, upon cancellation of this Purchase Agreement; and288. (b) Buyer shall obtain the title services determined necessary or desirable by Buyer or Buyer’s lender, including289. but not limited to title searches, title examinations, abstracting, a title insurance commitment, or an attorney’s290. title opinion at Buyer’s selection and cost and provide a copy to Seller.291. Seller shall use Seller’s best efforts to provide marketable title by the date of closing. Seller agrees to pay all costs292. and fees necessary to convey marketable title including obtaining and recording all required documents, subject to293.the following:294. In the event Seller has not provided marketable title by the date of closing, Seller shall have an additional thirty295. (30) days to make title marketable, or in the alternative, Buyer may waive title defects by written notice to Seller. In296. addition to the thirty (30)-day extension, Buyer and Seller may, by mutual agreement, further extend the closing297. date. Lacking such extension, either party may declare this Purchase Agreement canceled by written notice to298. the other party, or licensee representing or assisting the other party, in which case this Purchase Agreement is299. canceled. If either party declares this Purchase Agreement canceled, Buyer and Seller shall immediately sign a300. Cancellation of Purchase Agreement confirming said cancellation and directing all earnest money paid here to301. be refunded to Buyer.302. SUBDIVISION OF LAND, BOUNDARIES, AND ACCESS: If this sale constitutes or requires a subdivision of land303. owned by Seller, Seller shall pay all subdivision expenses and obtain all necessary governmental approvals. Seller304. warrants that the legal description of the real property to be conveyed has been or shall be approved for recording305. as of the date of closing. Seller warrants that the buildings are or shall be constructed entirely within the boundary306. lines of the Property. Seller warrants that there is a right of access to the Property from a public right-of-way.307. MECHANIC’S LIENS: Seller warrants that prior to the closing, payment in full will have been made for all labor, materials,308. machinery, fixtures, or tools furnished within the 120 days immediately preceding the closing in connection with309. construction, alteration, or repair of any structure on, or improvement to, the Property.310. NOTICES: Seller warrants that Seller has not received any notice from any governmental authority as to condemnation311. proceedings, or violation of any law, ordinance, or regulation. If the Property is subject to restrictive covenants, Seller312. warrants that Seller has not received any notice from any person or authority as to a breach of the covenants. Any313. such notices received by Seller shall be provided to Buyer immediately. Discriminatory restrictive covenants (e.g.314. provisions against conveyance of property to any person of a specified religious faith, creed, national origin, race, or315. color) are illegal and unenforceable. An owner of real property may permanently remove such restrictive covenants316. from the title by recording a statutory form in the office of the county recorder of any county where the property is located.317. DIMENSIONS: Buyer acknowledges any dimensions, square footage, or acreage of land or improvements provided318.by Seller, third party, or broker representing or assisting Seller are approximate. Buyer shall verify the accuracy of319.information to Buyer’s satisfaction, if material, at Buyer’s sole cost and expense.320. ACCESS AGREEMENT: Seller agrees to allow reasonable access to the Property for performance of any surveys or321.inspections agreed to here.MN:PA-7 (8/25)

Page 8

PURCHASE AGREEMENT322. Page 8 Date323. Property located at .324. RISK OF LOSS: If there is any loss or damage to the Property between the Date of this Purchase Agreement and325. the date of closing for any reason, including fire, vandalism, flood, earthquake, or act of God, the risk of loss shall be326. on Seller. If the Property is destroyed or substantially damaged before the closing date, this Purchase Agreement327. is canceled, at Buyer’s option, by written notice to Seller or licensee representing or assisting Seller. If Buyer cancels328. this Purchase Agreement, Buyer and Seller shall immediately sign a Cancellation of Purchase Agreement confirming329. said cancellation and directing all earnest money paid here to be refunded to Buyer.330. TIME OF ESSENCE: Time is of the essence in this Purchase Agreement.331. CALCULATION OF DAYS: Any calculation of days begins on the first day (Calendar or Business Days as specified)332. following the occurrence of the event specified and includes subsequent days (Calendar or Business Days as specified)333. ending at 11:59 P.M. on the last day.334. BUSINESS DAYS: “Business Days” are days which are not Saturdays, Sundays, or state or federal holidays unless335. stated elsewhere by the parties in writing.336. CALENDAR DAYS: “Calendar Days” include Saturdays, Sundays, and state and federal holidays. For purposes of337. this Agreement, any reference to “days” means “Calendar Days” unless otherwise required by law.338. RELEASE OF EARNEST MONEY: Buyer and Seller agree that the Earnest Money Holder shall release earnest money339. from the Earnest Money Holder’s trust account:340. (a) at or upon the successful closing of the Property;341. (b) pursuant to written agreement between the parties, which may be reflected in a Cancellation of Purchase342. Agreement executed by both Buyer and Seller;343. (c) upon receipt of an affidavit of a cancellation under MN Statute 559.217; or344. (d) upon receipt of a court order.345. DEFAULT: If Buyer defaults in any of the agreements here, Seller may cancel this Purchase Agreement, and any346. payments made here, including earnest money, shall be retained by Seller as liquidated damages and Buyer and347. Seller shall affirm the same by a written cancellation agreement.348. If Buyer defaults in any of the agreements here, Seller may terminate this Purchase Agreement under the provisions349. of either MN Statute 559.21 or MN Statute 559.217, whichever is applicable. If either Buyer or Seller defaults in any350. of the agreements here or there exists an unfulfilled condition after the date specified for fulfillment, either party may351. cancel this Purchase Agreement under MN Statute 559.217, Subd. 3. Whenever it is provided here that this Purchase352. Agreement is canceled, said language shall be deemed a provision authorizing a Declaratory Cancellation under MN353. Statute 559.217, Subd. 4.354.If this Purchase Agreement is not canceled or terminated as provided here, Buyer or Seller may seek actual damages355.for breach of this Purchase Agreement or specific performance of this Purchase Agreement; and, as to specific356.performance, such action must be commenced within six (6) months after such right of action arises.357. NOTICE REGARDING PREDATORY OFFENDER INFORMATION: Information regarding the predatory offender358. registry and persons registered with the predatory offender registry under MN Statute 243.166 may be obtained359. by contacting the local law enforcement offices in the community where the Property is located or the Minnesota360. Department of Corrections at (651) 361-7200, or from the Department of Corrections web site at361. https://coms.doc.state.mn.us/publicregistrantsearch.362. BUYER HAS THE RIGHT TO A WALK-THROUGH REVIEW OF THE PROPERTY PRIOR TO CLOSING TO363. ESTABLISH THAT THE PROPERTY IS IN SUBSTANTIALLY THE SAME CONDITION AS OF THE DATE OF364. THIS PURCHASE AGREEMENT.365. BUYER HAS RECEIVED A: (Check any that apply.) DISCLOSURE STATEMENT: SELLER’S PROPERTY 366. DISCLOSURE STATEMENT OR A DISCLOSURE STATEMENT: SELLER’S DISCLOSURE ALTERNATIVES FORM.367. DESCRIPTION OF PROPERTY CONDITION: See Disclosure Statement: Seller’s Property Disclosure Statement or368. Disclosure Statement: Seller’s Disclosure Alternatives for description of disclosure responsibilities and limitations, if369. any.370. BUYER HAS RECEIVED THE INSPECTION REPORTS, IF REQUIRED, BY MUNICIPALITY.371. BUYER IS NOT RELYING ON ANY ORAL REPRESENTATIONS REGARDING THE CONDITION OF THE PROPERTY372. AND ITS CONTENTS.MN:PA-8 (8/25)

Page 9

PURCHASE AGREEMENT373.Page 9 Date374. Property located at .375. (Check appropriate boxes.)376. SELLER WARRANTS THAT THE PROPERTY IS EITHER DIRECTLY OR INDIRECTLY CONNECTED TO:377. CITY SEWER YES NO / CITY WATER YES NO378. SUBSURFACE SEWAGE TREATMENT SYSTEM379. SELLER DOES DOES NOT KNOW OF A SUBSURFACE SEWAGE TREATMENT SYSTEM ON OR ----------------(Check one.)--------------380. SERVING THE PROPERTY. (If answer is DOES, and the system does not require a state permit, see Disclosure381. Statement: Subsurface Sewage Treatment System.)382. PRIVATE WELL383. SELLE RD OES D OES N OT KN O W OF A W E LL O N O R S E RV I N G T H E P R O P ERT Y.------------------(Check one.)------------------384. (If answer is DOES and well is located on the Property, see Disclosure Statement: Well.)385. THIS PURCHASE AGREEMENT IS IS NOT SUBJECT TO AN ADDENDUM TO PURCHASE AGREEMENT: -------(Check one.)------386. SUBSURFACE SEWAGE TREATMENT SYSTEM AND WELL INSPECTION CONTINGENCY.387. (If answer is IS, see attached Addendum.)388. IF A WELL OR SUBSURFACE SEWAGE TREATMENT SYSTEM EXISTS ON THE PROPERTY, BUYER HAS389. RECEIVED A DISCLOSURE STATEMENT: WELL AND/OR A DISCLOSURE STATEMENT: SUBSURFACE SEWAGE390. TREATMENT SYSTEM.391. HOME PROTECTION/WARRANTY PLAN: Buyer and Seller are advised to investigate the various home protection/392. warranty plans available for purchase. Different home protection/warranty plans have different coverage options,393. exclusions, limitations, and service fees. Most plans exclude pre-existing conditions. (Check one.)394. A Home Protection/Warranty Plan will be obtained by BUYER SELLER and paid for by -----------------(Check one.)-----------------395. BUYER SELLER to be issued by --------------(Check one.)------------396. at a cost not to exceed $ .397. No Home Protection/Warranty Plan is negotiated as part of this Purchase Agreement. However, Buyer may elect398. to purchase a Home Protection/Warranty Plan.399. AGENCY NOTICE400. is Seller’s Agent Buyer’s Agent Dual Agent Facilitator.(Licensee) -------------------------------------------------(Check one.)--------------------------------------------401. (Real Estate Company Name)402. is Seller’s Agent Buyer’s Agent Dual Agent Facilitator.(Licensee) -------------------------------------------------(Check one.)--------------------------------------------403. (Real Estate Company Name)404. THIS NOTICE DOES NOT SATISFY MINNESOTA STATUTORY AGENCY DISCLOSURE REQUIREMENTS.405. SELLER’S CONTRIBUTION TO BUYER’S BROKER’S COMPENSATION: Seller agrees to pay buyer’s broker’s406. compensation at closing percent (%) of the selling price or $ , whichever is 407. greater. This is in addition to any Seller’s contribution to Buyer’s closing costs paid at closing. This amount is in408. addition to the listing broker’s offer of cooperating compensation, if any.MN:PA-9 (8/25)

Page 10

PURCHASE AGREEMENT409.Page 10 Date410. Property located at .411. DUAL AGENCY REPRESENTATION412. PLEASE CHECK ONE OF THE FOLLOWING SELECTIONS:413. Dual Agency representation DOES NOT apply in this transaction. Do not complete lines 414–430.414. Dual Agency representation DOES apply in this transaction. Complete the disclosure in lines 415-430.415. Broker represents both the Seller(s) and the Buyer(s) of the Property involved in this transaction, which creates a416. dual agency. This means that Broker and its salespersons owe fiduciary duties to both Seller(s) and Buyer(s). Because417. the parties may have conflicting interests, Broker and its salespersons are prohibited from advocating exclusively for418. either party. Broker cannot act as a dual agent in this transaction without the consent of both Seller(s) and Buyer(s).419. Seller(s) and Buyer(s) acknowledge that420. (1) confidential information communicated to Broker which regards price, terms, or motivation to buy or sell will421. remain confidential unless Seller(s) or Buyer(s) instructs Broker in writing to disclose this information. Other422. information will be shared;423. (2) Broker and its salespersons will not represent the interest of either party to the detriment of the other; and424. (3) within the limits of dual agency, Broker and its salespersons will work diligently to facilitate the mechanics of425. the sale.426. With the knowledge and understanding of the explanation above, Seller(s) and Buyer(s) authorize and instruct Broker427. and its salesperson to act as dual agents in this transaction.428. SellerBuyer 429. Seller Buyer 430. Date Date 431. CLOSING COSTS: Buyer or Seller may be required to pay certain closing costs, which may effectively increase the432. cash outlay at closing or reduce the proceeds from the sale.433. SETTLEMENT STATEMENT: Buyer and Seller authorize the title company, escrow agent, and/or their representatives434. to disclose and provide copies of the disbursing agent’s settlement statement to the real estate licensees involved435. in the transaction at the time these documents are provided to Buyer and Seller.436. FOREIGN INVESTMENT IN REAL PROPERTY TAX ACT (“FIRPTA”): Section 1445 of the Internal Revenue Code437. provides that a transferee (“Buyer”) of a United States real property interest must be notified in writing and must withhold438. tax if the transferor (“Seller”) is a foreign person and no exceptions from FIRPTA withholding apply. Buyer and Seller439. agree to comply with FIRPTA requirements under Section 1445 of the Internal Revenue Code.440. Seller shall represent and warrant, under the penalties of perjury, whether Seller is a “foreign person” (as the same441. is defined within FIRPTA), prior to closing. Any representations made by Seller with respect to this issue shall survive442. the closing and delivery of the deed.443. Buyer and Seller shall complete, execute, and deliver, on or before closing, any instrument, affidavit, or statement444. reasonably necessary to comply with the FIRPTA requirements, including delivery of their respective federal taxpayer445. identification numbers or Social Security numbers.446. Due to the complexity and potential risks of failing to comply with FIRPTA, including the Buyer’s responsibility for447. withholding the applicable tax, Buyer and Seller should seek appropriate legal and tax advice regarding FIRPTA448. compliance, as the respective licensee’s representing or assisting either party will be unable to assure either449. party whether the transaction is exempt from FIRPTA withholding requirements.MN:PA-10 (8/25)

Page 11

PURCHASE AGREEMENT450.Page 11 Date451. Property located at .452. FULLY EXECUTED PURCHASE AGREEMENT AND FINAL ACCEPTANCE: To be binding, this Purchase Agreement453. and all addenda must be fully executed by both parties and a copy must be delivered.454. ELECTRONIC SIGNATURES: The parties agree the electronic signature of any party on any document related to455. this transaction constitute valid, binding signatures.456. ENTIRE AGREEMENT: This Purchase Agreement and all addenda and amendments signed by the parties shall457. constitute the entire agreement between Buyer and Seller. Any other written or oral communication between Buyer and458. Seller, including, but not limited to, e-mails, text messages, or other electronic communications are not part of this459. Purchase Agreement. This Purchase Agreement can be modified or canceled only in writing signed by Seller and460. Buyer or by operation of law. All monetary sums are deemed to be United States currency for purposes of this Purchase461. Agreement.462. SURVIVAL: All warranties specified in this Purchase Agreement shall survive the delivery of the deed or contract463. for deed.464. DATE OF THIS PURCHASE AGREEMENT: Date of this Purchase Agreement to be defined as the date on line one465. (1) of this Purchase Agreement.466. OTHER:467. 468. 469. 470. 471. 472. 473. 474. 475. 476. ADDENDA: The following addenda are attached and made a part of this Purchase Agreement.477. NOTE: Disclosures and optional Arbitration Agreement are not part of this Purchase Agreement.478. Addendum to Purchase Agreement479. Addendum to Purchase Agreement: Additional Signatures480. Addendum to Purchase Agreement: Assumption Financing481. Addendum to Purchase Agreement: Buyer Move-In Agreement482. Addendum to Purchase Agreement: Buyer Purchasing “As Is” and Limitation of Seller Liability483. Addendum to Purchase Agreement: Condominium/Townhouse/Cooperative Common Interest Community (“CIC”) 484. Addendum to Purchase Agreement: Contract for Deed Financing485. Addendum to Purchase Agreement: Disclosure of Information on Lead-Based Paint and Lead-Based Paint Hazards486. Addendum to Purchase Agreement: Sale of Buyer’s Property Contingency487. Addendum to Purchase Agreement: Seller’s Rent Back Agreement 488. Addendum to Purchase Agreement: Seller’s Purchase/Lease Contingency 489. Addendum to Purchase Agreement: Short Sale Contingency490. Addendum to Purchase Agreement: Subsurface Sewage Treatment System and Well Water Inspection Contingency491. Other: MN:PA-11 (8/25)

Page 12

PURCHASE AGREEMENT492.Page 12 Date493. Property located at .494. I agree to sell the Property for the price and on the I agree to purchase the Property for the price and on495. terms and conditions set forth above. the terms and conditions set forth above.496. I have reviewed all pages of this Purchase I have reviewed all pages of this Purchase497. Agreement. Agreement.498. If checked, this Purchase Agreement is subject to 499. attached Addendum to Purchase Agreement:500. Counteroffer and the Final Acceptance Date shall be501. noted on the Addendum.502. FIRPTA: Seller represents and warrants, under penalty503. of perjury, that Seller IS IS NOT a foreign person (i.e., a ------(Check one.)-----504. non-resident alien individual, foreign corporation, foreign505. partnership, foreign trust, or foreign estate for purposes of506. income taxation. (See lines 436-449.)) This representation507. and warranty shall survive the closing of the transaction508. and the delivery of the deed.509. XX (Seller’s Signature) (Date) (Buyer’s Signature) (Date)510. XX (Seller’s Printed Name) (Buyer’s Printed Name)511. XX (Seller’s Signature) (Date) (Buyer’s Signature) (Date)512. XX (Seller’s Printed Name) (Buyer’s Printed Name) 513. FINAL ACCEPTANCE DATE: The Final Acceptance Date 514. is the date on which the fully executed Purchase Agreement is delivered.515. THIS IS A LEGALLY BINDING CONTRACT BETWEEN BUYER(S) AND SELLER(S).516. IF YOU DESIRE LEGAL OR TAX ADVICE, CONSULT AN APPROPRIATE PROFESSIONAL.517. I ACKNOWLEDGE THAT I HAVE RECEIVED AND HAVE HAD THE OPPORTUNITY TO REVIEW THE DISCLOSURE518. STATEMENT: ARBITRATION DISCLOSURE AND RESIDENTIAL REAL PROPERTY ARBITRATION AGREEMENT,519. WHICH IS AN OPTIONAL, VOLUNTARY AGREEMENT SEPARATE FROM THIS PURCHASE AGREEMENT.520. SELLER(S)BUYER(S) 521. SELLER(S) BUYER(S) MN:PA-12 (8/25)